
名称:两承一插异三通
承压等级:【1.0MPa】
颜色:灰色
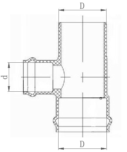
产品规格图解:
其中 D 表示管件主承口和主插口直径为 160mm,d 表示管件支承口直径为 110mm,1.0MPa=10公斤。
PVC-U管件是一种硬质聚氯乙烯材料,它是由聚氯乙烯树脂与稳定剂、润滑剂等以一定的比例混合注塑成型的。产品外表光滑,符合GB/T10002.1-2006的标准。
产品包装介绍:
两承一插异三通的特点及用途:
1. 产品经过热塑处理,最高可在流体温度60C°的环境下正常工作。
2.主要用于胶圈式管材主、干管之间的连接。
3.管件的连接需在R胀口内放入橡胶密封圈。
4.管件长时间使用内壁不结垢、不阻塞,更卫生。
※若购买此种管件用于管材连接,需同时购买相配套的橡胶密封圈,具体安装方式及注意事项详见《PVC-U柔性管件连接方法》。